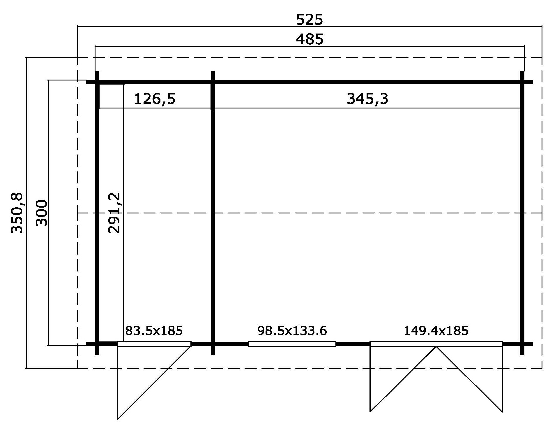
Aiamaja Wrexham on saadaval kahes erinevas suuruses. Majal on kaks eraldi ruumi, millest väiksemas täispuituksega panipaigas sobib hoida jalgrattaid,  muruniidukit või aiatööriistu, pearuumi saab aga kasutada valgusküllase puhkeruumina, kus aiatööst puhata ja lõõgastuda. Majakomplekt sisaldab kõiki paigaldamiseks vajaminevaid detaile: immutatud alusraam, seinadetailid, põrandalauad ja põrandaliistud, katusetalad, katuselauad ja katuseliistud ning avatäited. Lisaks on pakis ka kinnitusvahendid (kruvid, naelad jms). Majakomplekti ei kuulu katusekate, juurde on võimalik osta nii katusepappi kui ka katusesindleid.

WREXHAM 2

3,824.00

✔ Päring edukalt saadetud!
×

Tee päring

Laius
Laius 4850 mm
Pindala
Pindala 13.87 m²
Pikkus
Pikkus 3000 mm
Seina paksus
Seina paksus 44 mm
Kõrgus
Kõrgus 2508 mm
Katuse üleulatuvus
Katuse üleulatuvus 25.4 mm
Ruumala: 32.01 m³
Peegeldamine: ja
Akna klaas: Soojustatud klaaspakett
Katuse laius: 5250 mm
Värv: looduslikult töötlemata
Uste/akende materjal: kuusk
Põrand kaasas: Sisaldab põrandat
Harjatala kõrgus: 2508 mm
Korrus: 1
Sisemine laius: 4718 mm
Katuse kuju: Viilkatus
Katusekattematerjali vajadus: 2 x 15 m
Magamislavats: ei
Seina kõrgus: 2109 mm
Nurk: 13°
Pakide kaal: 1334 kg
Shopping Cart
Scroll to Top